2014.08.29|

DESIGNER

立体的に見る事、見せる事

AD CORE DEVISE DESIGNER BLOG Vol.35
私たちの眼が顔の前に向いてついている理由は(他の動物の多くは頭の横に目がついています)、祖先が恐竜の生き残りの巨大肉食鳥を避けて、樹の上に生活するようになり、枝から枝へ飛び移るための距離感を計るために、立体的に景色が見えるように顔の前に眼球が移動したそうです。その後、寒冷化した地球で、エサ不足に陥った霊長類はエサを見つけるために、遠くまで見える視力を持つようになり、さらに目を進化させたそうです。

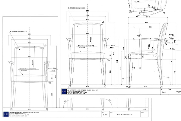
デザインの仕事をしていて大切な事は、いかに立体的に物の形を考えられるかです。紙に描くスケッチを陰影を付けて描くのも、完成の姿を立体的にイメージするからです。家具の三面図は平面ですが、外形線、内接線や補助線など様々な線に強弱をつけて、平面だけど立体的に見えるような描き方を心がけます。全て同じ線で描いてしまうと、のっぺりとした図面になり、図面から形が伝わってきません。職人さんが作る時に間違わないように、図面から浮き出て見える図面を描くのが、図面描きのこつで、それが死命だと、学生の頃にアルバイトしていた家具工場の設計の方に教えられた事を今でも思い出します。今は使わなくなりましたが、トレーシングペーパーで椅子の図面を描いていた頃は、鉛筆の筆圧や固さを変えながら描いていました。それも紙面の中にバランス良く描けるかも大切です。

今でもその頃のバランス感覚や表現方法が、カタログ製作や撮影等の時に本当に役に立っています。今では、パソコンを使って描くようになり、線の強弱がディスプレイ画面では見えなくなり、レイアウトも後で調整できるので、描き始めの準備をしなくてもよくなりましたが、昔はトレペに描く前に、別の紙で構想して、薄い線で下書きをして、レイアウトを確認してから実線を描きました。そうしないと実線は消しゴムで消すと白くなり、青焼きすると白く線が出てしまうので、汚い図面になるからです。また鉛筆だったので、図面が汚れないように、描いている途中でも定規を拭いたり、直接、紙に腕が当たらないように紙を置いたり、、、。本当に大変でした。そして、いかに平面の図面が立体的に見えるかを心がけ、0.5ミリ、0.3ミリのシャープペンを使い、ペンを回しながら、均一な線で強弱を付けていました。本当に手間でしたが、それが今の仕事に役だっています。

最近は、電車内で見かけるサラリーマンや子供達がしているスマホゲームや、立体的に見えない説明図(取扱い説明書もパソコンで見るようになり線が均一化したり)が多いように感じます。せっかく進化して、立体的に見る眼や立体的に考える脳を持ったので、使わないともったいないような気がします。でも、年齢を重ねて、遠近が弱くなってきた事に焦りを感じている今日この頃ですが、、。
11月発表の新作は陰影を形に表現した製品を出す予定です。お楽しみに!
PACEのサイトへ▷
                                 (クリエイティブ・ディレクター/瀬戸 昇)

デザインする時は未だにクロッキー帳に鉛筆でスケッチです。2ミリシャープペンを使います。今は普通の文房具屋さんに替芯と芯研機が売っていないのが困りもの、、。写真は2011年モデルのPACEのアームチェアの図面を描く前のスケッチです。フリーハンドでも以外と正確なんです。
同じ太さの線で描くと平面的な図面になります。(下の図面は全て同じ線)外形線を太く、それ以外は場所によってメリハリを付けると図面が浮かび上がります。(上の図面)写真では分かりにくいのが残念ですが、、。
ホテルのおもてなしとインテリア Back to top コースター入荷しました(大阪・心斎橋ショ…
前の記事ホテルのおもてなしとインテリア 次の記事コースター入荷しました(大阪・心斎橋ショ…
Back to top